Top.Mail.Ru

Рязанский проспект, д. 81/1

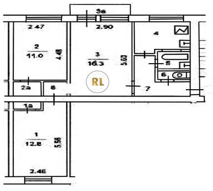
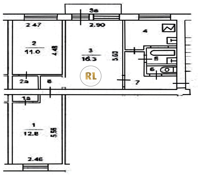
База каталог, Кол-во подъездов: 4, Отсутствует, I-511, Москва, Рязанский, Площадь парковки: 0, Пассажирский лифт: 0, От метро: 249, Юго-Восточный, нет, Наименьшее кол-во этажей: 5, Наибольшее кол-во этажей: 5, Рязанский проспект, Кол-во помещений: 82, Кол-во нежилых помещений: 2, Год ввода в эксплуатацию: 1962, 3-комн, Кол-во жилых помещений: 80, Не присвоен, дом 81/1, да, да, да, да, да, да, Имеется, Грузовых лифтов: 0, Год постройки: 1962, Рязанский проспект, 37.796957, 55.717442
Свяжитесь со мной на счет цены
10 дн.
T55S717442L37S796957T

На карте


Условия сделки

Источник


Старт продаж

Возможно заинтересует