Top.Mail.Ru

улица Рудневка, д. 43

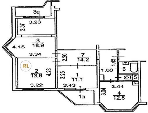
База каталог, Кол-во подъездов: 6, Имеется, П-44T, Москва, Косино-Ухтомский, Площадь парковки: 1114, Пассажирский лифт: 6, От метро: 1140, Восточный, да, Наименьшее кол-во этажей: 12, Наибольшее кол-во этажей: 14, Лухмановская, Кол-во помещений: 322, Кол-во нежилых помещений: 11, Год ввода в эксплуатацию: 2005, 3-комн, Кол-во жилых помещений: 311, E, дом 43, нет, да, да, да, да, нет, Имеется, Грузовых лифтов: 6, Год постройки: 2005, улица Рудневка, 37.895260, 55.717650
Свяжитесь со мной на счет цены
10 дн.
T55S717650L37S895260T

На карте


Условия сделки

Источник


Старт продаж

Возможно заинтересует