Top.Mail.Ru

улица Рудневка, д. 35

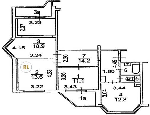
База каталог, Кол-во подъездов: 5, Отсутствует, П-44T, Москва, Косино-Ухтомский, Площадь парковки: 725, Пассажирский лифт: 5, От метро: 1300, Восточный, да, Наименьшее кол-во этажей: 12, Наибольшее кол-во этажей: 14, Лухмановская, Кол-во помещений: 275, Кол-во нежилых помещений: 8, Год ввода в эксплуатацию: 2005, 3-комн, Кол-во жилых помещений: 267, E, дом 35, нет, да, да, да, да, нет, Имеется, Грузовых лифтов: 5, Год постройки: 2005, улица Рудневка, 37.891172, 55.717756
Свяжитесь со мной на счет цены
10 дн.
T55S717756L37S891172T

На карте


Условия сделки

Источник


Старт продаж

Возможно заинтересует