Top.Mail.Ru

Оранжерейная ул., д. 12

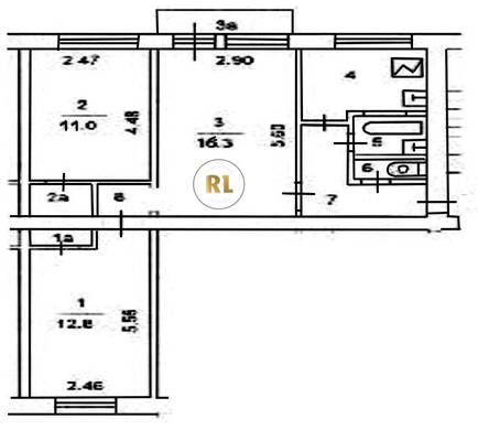
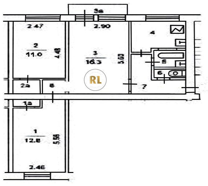
База каталог, Кол-во подъездов: 4, I-511, Москва, Косино-Ухтомский, Площадь парковки: 72, Пассажирский лифт: 0, От метро: 1600, Восточный, да, Наименьшее кол-во этажей: 5, Наибольшее кол-во этажей: 5, Улица Дмитриевского, Кол-во помещений: 70, Кол-во нежилых помещений: 0, Год ввода в эксплуатацию: 1967, 3-комн, Кол-во жилых помещений: 70, E, дом 12, нет, да, да, да, нет, нет, Имеется, Грузовых лифтов: 0, Год постройки: 1967, Оранжерейная улица, 37.862759, 55.717847
13 200 000 Р
10 дн.
T55S717847L37S862759T
+

На карте


Условия сделки

Источник


Старт продаж