Top.Mail.Ru

Оранжерейная ул., д. 8

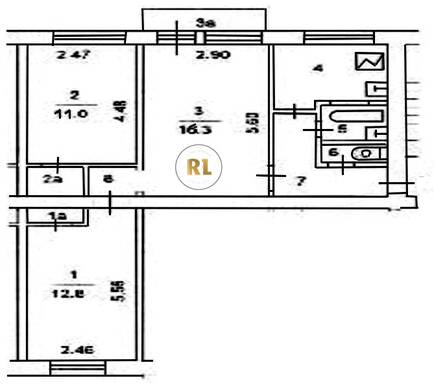
База каталог, Кол-во подъездов: 3, I-511, Москва, Косино-Ухтомский, Площадь парковки: 0, Пассажирский лифт: 0, От метро: 1710, Восточный, нет, Наименьшее кол-во этажей: 5, Наибольшее кол-во этажей: 5, Улица Дмитриевского, Кол-во помещений: 60, Кол-во нежилых помещений: 0, Год ввода в эксплуатацию: 1964, 3-комн, Кол-во жилых помещений: 60, Не присвоен, дом 8, нет, да, да, да, нет, нет, Грузовых лифтов: 0, Год постройки: 1964, Оранжерейная улица, 37.860953, 55.718045
Свяжитесь со мной на счет цены
10 дн.
T55S718045L37S860953T

На карте


Условия сделки

Источник


Старт продаж

Возможно заинтересует