Top.Mail.Ru

Оранжерейная ул., д. 6

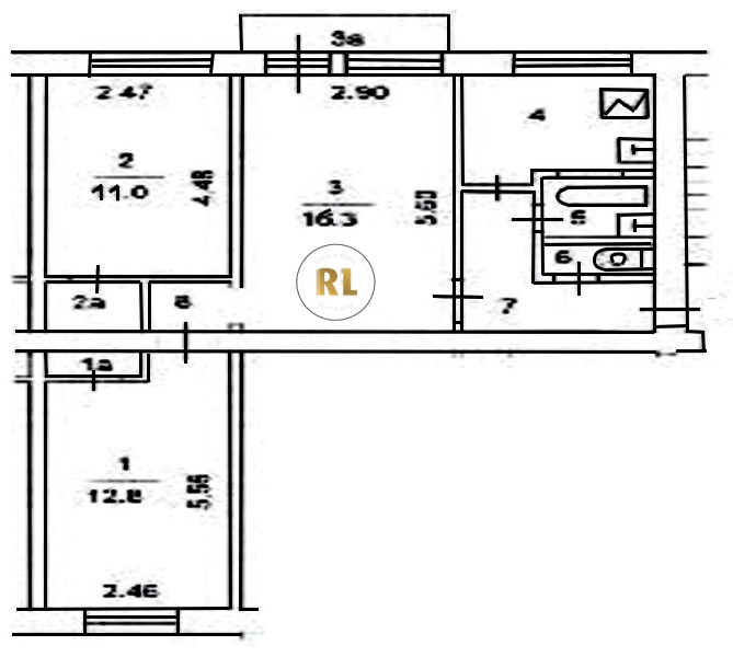
База каталог, Кол-во подъездов: 3, I-511, Москва, Косино-Ухтомский, Площадь парковки: 0, Пассажирский лифт: 0, От метро: 1750, Восточный, нет, Наименьшее кол-во этажей: 5, Наибольшее кол-во этажей: 5, Улица Дмитриевского, Кол-во помещений: 60, Кол-во нежилых помещений: 0, Год ввода в эксплуатацию: 1965, 3-комн, Кол-во жилых помещений: 60, D, дом 6, нет, да, да, да, нет, нет, Имеется, Грузовых лифтов: 0, Год постройки: 1965, Оранжерейная улица, 37.860243, 55.718136
Свяжитесь со мной на счет цены
10 дн.
T55S718136L37S860243T

На карте


Условия сделки

Источник


Старт продаж

Возможно заинтересует