Top.Mail.Ru

Оранжерейная ул., д. 14

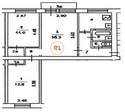
База каталог, Кол-во подъездов: 4, I-511, Москва, Косино-Ухтомский, Площадь парковки: 0, Пассажирский лифт: 0, От метро: 1480, Восточный, нет, Наименьшее кол-во этажей: 5, Наибольшее кол-во этажей: 5, Улица Дмитриевского, Кол-во помещений: 69, Кол-во нежилых помещений: 1, Год ввода в эксплуатацию: 1971, 3-комн, Кол-во жилых помещений: 68, D, дом 14, нет, да, да, да, да, нет, Имеется, Грузовых лифтов: 0, Год постройки: 1971, Оранжерейная улица, 37.864061, 55.718157
Свяжитесь со мной на счет цены
10 дн.
T55S718157L37S864061T

На карте


Условия сделки

Источник


Старт продаж

Возможно заинтересует