Top.Mail.Ru

Оранжерейная ул., д. 10

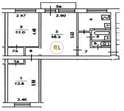
База каталог, Кол-во подъездов: 4, Отсутствует, I-511, Москва, Косино-Ухтомский, Площадь парковки: 0, Пассажирский лифт: 0, От метро: 1620, Восточный, нет, Наименьшее кол-во этажей: 5, Наибольшее кол-во этажей: 5, Улица Дмитриевского, Кол-во помещений: 69, Кол-во нежилых помещений: 1, Год ввода в эксплуатацию: 1973, 3-комн, Кол-во жилых помещений: 68, D, дом 10, нет, да, да, да, нет, нет, Имеется, Грузовых лифтов: 0, Год постройки: 1973, Оранжерейная улица, 37.861851, 55.718263
Свяжитесь со мной на счет цены
10 дн.
T55S718263L37S861851T

На карте


Условия сделки

Источник


Старт продаж

Возможно заинтересует