Top.Mail.Ru

Можайское шоссе, д. 31, к. 1

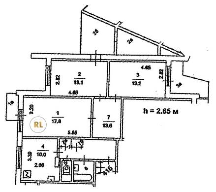
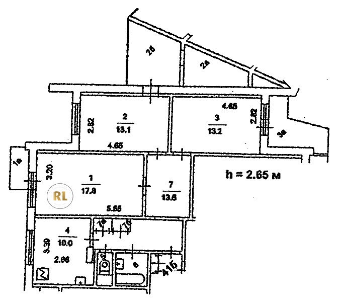
База каталог, Кол-во подъездов: 6, Отсутствует, П-3/16, Москва, Можайский, Площадь парковки: 0, Пассажирский лифт: 6, От метро: 2450, Западный, нет, Наименьшее кол-во этажей: 0, Наибольшее кол-во этажей: 16, Кунцевская, Кол-во помещений: 312, Кол-во нежилых помещений: 0, Год ввода в эксплуатацию: 1980, 3-комн, Кол-во жилых помещений: 312, Не присвоен, дом 31, корпус 1, нет, да, да, нет, нет, нет, Имеется, Грузовых лифтов: 6, Год постройки: 1980, Можайское шоссе, 37.420392, 55.718517
Свяжитесь со мной на счет цены
10 дн.
T55S718517L37S420392T

На карте


Условия сделки

Источник


Старт продаж

Возможно заинтересует