Top.Mail.Ru

Саратовская ул., д. 31

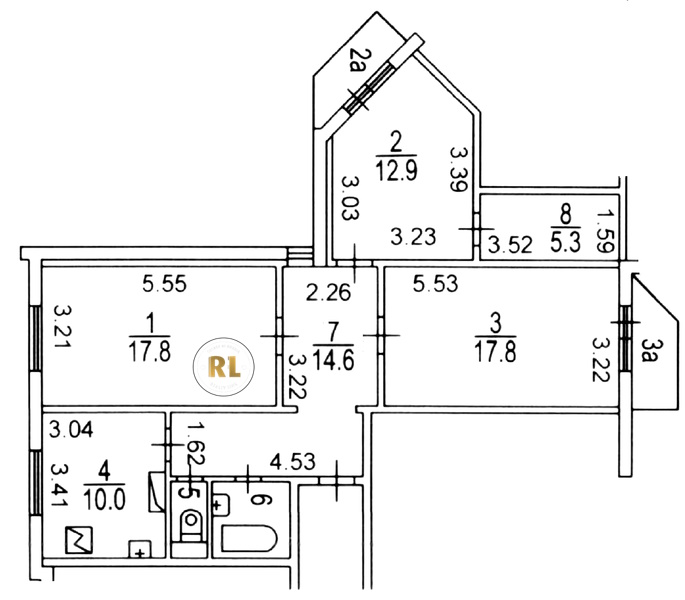
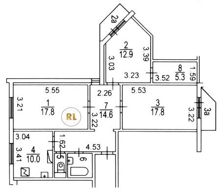
База каталог, Кол-во подъездов: 6, П-3M, Москва, Рязанский, Площадь парковки: 0, Пассажирский лифт: 6, От метро: 1760, Юго-Восточный, нет, Наименьшее кол-во этажей: 23, Наибольшее кол-во этажей: 23, Стахановская, Кол-во помещений: 508, Кол-во нежилых помещений: 12, Год ввода в эксплуатацию: 2007, 3-комн, Кол-во жилых помещений: 496, Не присвоен, дом 31, нет, да, да, да, нет, нет, Грузовых лифтов: 12, Год постройки: 2007, Саратовская улица, 37.746768, 55.718542
Свяжитесь со мной на счет цены
10 дн.
T55S718542L37S746768T

На карте


Условия сделки

Источник


Старт продаж

Возможно заинтересует