Top.Mail.Ru

улица Артамонова, д. 3

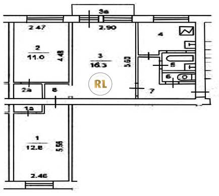
База каталог, Кол-во подъездов: 3, I-511, Москва, Фили-Давыдково, Площадь парковки: 0, Пассажирский лифт: 0, От метро: 990, Западный, нет, Наименьшее кол-во этажей: 1, Наибольшее кол-во этажей: 5, Давыдково, Кол-во помещений: 60, Кол-во нежилых помещений: 0, Год ввода в эксплуатацию: 1968, 3-комн, Кол-во жилых помещений: 60, А, дом 3, нет, да, да, да, да, да, Имеется, Грузовых лифтов: 0, Год постройки: 1968, улица Артамонова, 37.460637, 55.719333
Свяжитесь со мной на счет цены
10 дн.
T55S719333L37S460637T

На карте


Условия сделки

Источник


Старт продаж

Возможно заинтересует