Top.Mail.Ru

улица Артамонова, д. 10

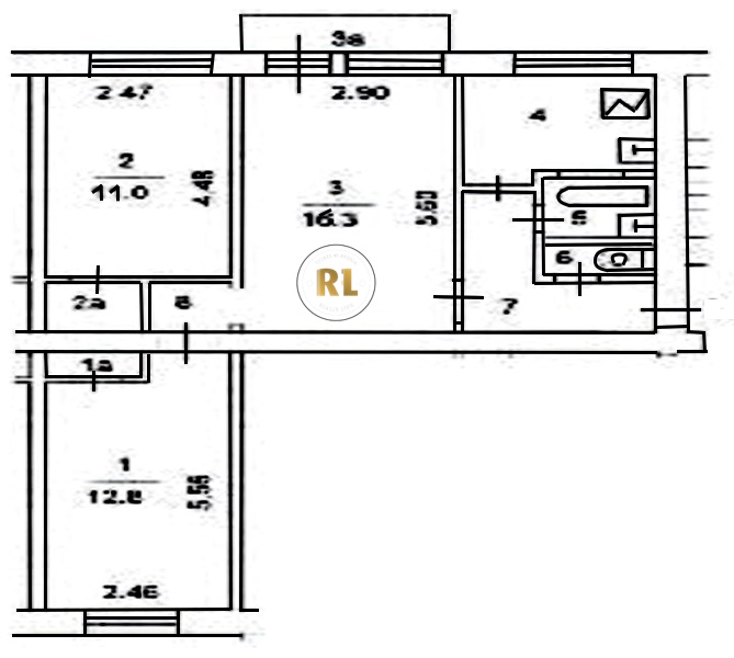
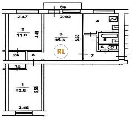
База каталог, Кол-во подъездов: 4, I-511, Москва, Фили-Давыдково, Площадь парковки: 0, Пассажирский лифт: 0, От метро: 880, Западный, нет, Наименьшее кол-во этажей: 1, Наибольшее кол-во этажей: 5, Давыдково, Кол-во помещений: 80, Кол-во нежилых помещений: 0, Год ввода в эксплуатацию: 1967, 3-комн, Кол-во жилых помещений: 80, А, дом 10, нет, да, да, да, да, да, Имеется, Грузовых лифтов: 0, Год постройки: 1967, улица Артамонова, 37.456765, 55.719622
Свяжитесь со мной на счет цены
10 дн.
T55S719622L37S456765T

На карте


Условия сделки

Источник


Старт продаж

Возможно заинтересует