Top.Mail.Ru

улица Паперника, д. 1

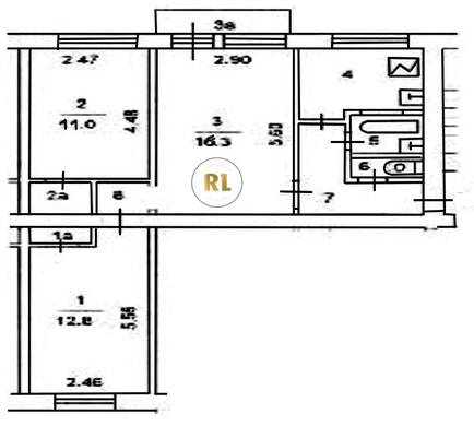
База каталог, Кол-во подъездов: 3, Имеется, I-511, Москва, Рязанский, Площадь парковки: 0, Пассажирский лифт: 0, От метро: 138, Юго-Восточный, нет, Наименьшее кол-во этажей: 5, Наибольшее кол-во этажей: 5, Окская, Кол-во помещений: 60, Кол-во нежилых помещений: 2, Год ввода в эксплуатацию: 1962, 3-комн, Кол-во жилых помещений: 58, Не присвоен, дом 1, да, да, да, да, да, да, Имеется, Грузовых лифтов: 0, Год постройки: 1962, улица Паперника, 37.782656, 55.719759
Свяжитесь со мной на счет цены
10 дн.
T55S719759L37S782656T

На карте


Условия сделки

Источник


Старт продаж

Возможно заинтересует