Top.Mail.Ru

улица Артамонова, д. 12, к. 2

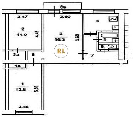
База каталог, Кол-во подъездов: 4, I-511, Москва, Фили-Давыдково, Площадь парковки: 0, Пассажирский лифт: 4, От метро: 950, Западный, нет, Наименьшее кол-во этажей: 1, Наибольшее кол-во этажей: 9, Давыдково, Кол-во помещений: 144, Кол-во нежилых помещений: 0, Год ввода в эксплуатацию: 1971, 3-комн, Кол-во жилых помещений: 144, А, дом 12, корпус 2, нет, да, да, да, да, да, Имеется, Грузовых лифтов: 0, Год постройки: 1971, улица Артамонова, 37.455930, 55.720139
17 000 000 Р
10 дн.
T55S720139L37S455930T
+

На карте


Условия сделки

Источник


Старт продаж

Возможно заинтересует