Top.Mail.Ru

улица Паперника, д. 5

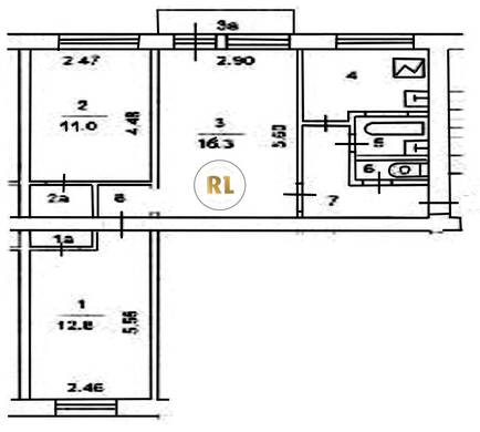
База каталог, Кол-во подъездов: 4, Имеется, I-511, Москва, Рязанский, Площадь парковки: 0, Пассажирский лифт: 0, От метро: 370, Юго-Восточный, нет, Наименьшее кол-во этажей: 5, Наибольшее кол-во этажей: 5, Окская, Кол-во помещений: 82, Кол-во нежилых помещений: 2, Год ввода в эксплуатацию: 1963, 3-комн, Кол-во жилых помещений: 80, Не присвоен, дом 5, да, да, да, да, да, да, Имеется, Грузовых лифтов: 0, Год постройки: 1963, улица Паперника, 37.784372, 55.720261
Свяжитесь со мной на счет цены
10 дн.
T55S720261L37S784372T

На карте


Условия сделки

Источник


Старт продаж

Возможно заинтересует