Top.Mail.Ru

улица Гришина, д. 3

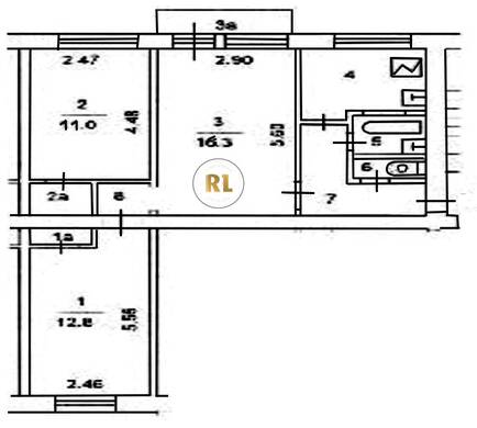
База каталог, Кол-во подъездов: 4, Отсутствует, I-511-4/M-22БИ, Москва, Можайский, Площадь парковки: 0, Пассажирский лифт: 0, От метро: 2470, Западный, нет, Наименьшее кол-во этажей: 0, Наибольшее кол-во этажей: 5, Кунцевская, Кол-во помещений: 80, Кол-во нежилых помещений: 0, Год ввода в эксплуатацию: 1966, 3-комн, Кол-во жилых помещений: 80, Не присвоен, дом 3, нет, да, да, нет, нет, нет, Имеется, Грузовых лифтов: 0, Год постройки: 1966, улица Гришина, 37.419063, 55.720687
Свяжитесь со мной на счет цены
10 дн.
T55S720687L37S419063T

На карте


Условия сделки

Источник


Старт продаж

Возможно заинтересует