Top.Mail.Ru

улица Паперника, д. 13

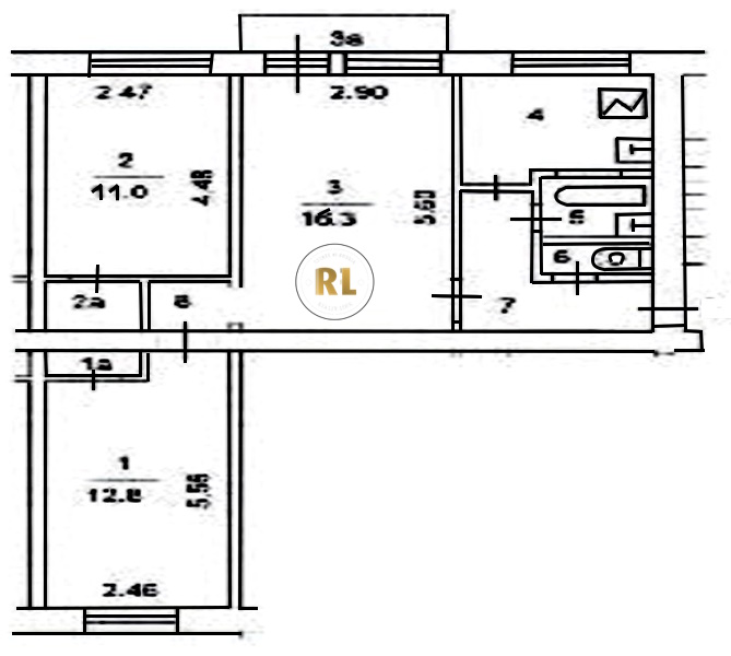
База каталог, Кол-во подъездов: 4, Имеется, I-511, Москва, Рязанский, Площадь парковки: 0, Пассажирский лифт: 0, От метро: 570, Юго-Восточный, нет, Наименьшее кол-во этажей: 5, Наибольшее кол-во этажей: 5, Окская, Кол-во помещений: 72, Кол-во нежилых помещений: 2, Год ввода в эксплуатацию: 1963, 3-комн, Кол-во жилых помещений: 70, Не присвоен, дом 13, да, да, да, да, да, да, Имеется, Грузовых лифтов: 0, Год постройки: 1963, улица Паперника, 37.788046, 55.721224
Свяжитесь со мной на счет цены
10 дн.
T55S721224L37S788046T

На карте


Условия сделки

Источник


Старт продаж

Возможно заинтересует