Top.Mail.Ru

улица Кутузова, д. 6

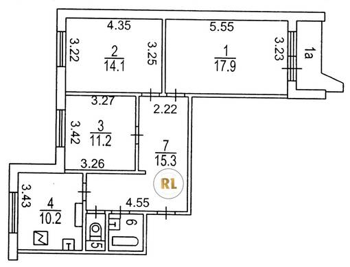
База каталог, Кол-во подъездов: 2, П-44, Москва, Можайский, Пассажирский лифт: 2, От метро: 2560, Западный, да, Наименьшее кол-во этажей: 0, Наибольшее кол-во этажей: 17, Молодёжная, Кол-во помещений: 132, Кол-во нежилых помещений: 0, Год ввода в эксплуатацию: 1997, 3-комн, Кол-во жилых помещений: 132, дом 6, нет, да, да, нет, нет, нет, Имеется, Грузовых лифтов: 2, Год постройки: 1997, улица Кутузова, 37.416053, 55.721417
Свяжитесь со мной на счет цены
10 дн.
T55S721417L37S416053T

На карте


Условия сделки

Источник


Старт продаж

Возможно заинтересует