Top.Mail.Ru

Люсиновская ул., д. 41, стр. 1

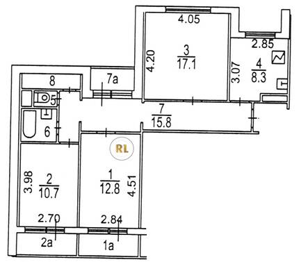
База каталог, Кол-во подъездов: 4, Имеется, П-55, Москва, Замоскворечье, Пассажирский лифт: 8, От метро: 760, Центральный, да, Наименьшее кол-во этажей: 14, Наибольшее кол-во этажей: 14, Серпуховская, Кол-во помещений: 191, Кол-во нежилых помещений: 9, Год ввода в эксплуатацию: 1988, 3-комн, Кол-во жилых помещений: 182, D, дом 41, строение 1, нет, да, да, да, да, да, Имеется, Грузовых лифтов: 0, Год постройки: 1988, Люсиновская улица, 37.622980, 55.721523
Свяжитесь со мной на счет цены
10 дн.
T55S721523L37S622980T

На карте


Условия сделки

Источник


Старт продаж

Возможно заинтересует