Top.Mail.Ru

улица Молдагуловой, д. 16, к. 3

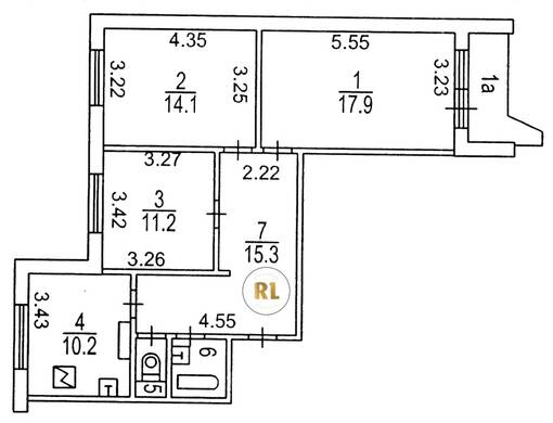
База каталог, Кол-во подъездов: 2, Имеется, П-44, Москва, Вешняки, Площадь парковки: 228, Пассажирский лифт: 2, От метро: 740, Восточный, да, Наименьшее кол-во этажей: 14, Наибольшее кол-во этажей: 14, Выхино, Кол-во помещений: 111, Кол-во нежилых помещений: 0, Год ввода в эксплуатацию: 1997, 3-комн, Кол-во жилых помещений: 111, E, дом 16, корпус 3, нет, да, да, да, да, да, Имеется, Грузовых лифтов: 2, Год постройки: 1997, улица Молдагуловой, 37.816513, 55.721579
Свяжитесь со мной на счет цены
10 дн.
T55S721579L37S816513T

На карте


Условия сделки

Источник


Старт продаж

Возможно заинтересует