Top.Mail.Ru

Лухмановская ул., д. 17

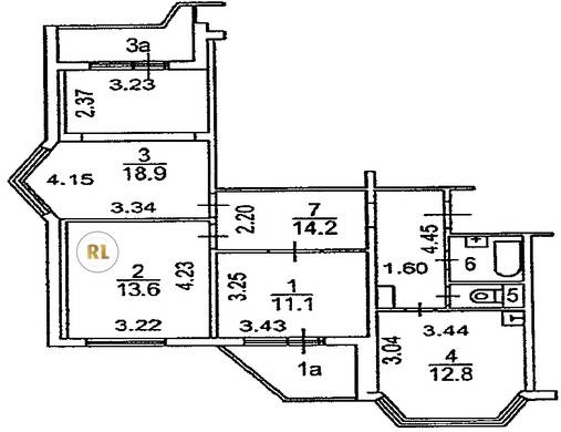
База каталог, Кол-во подъездов: 12, Имеется, П-44T, Москва, Косино-Ухтомский, Площадь парковки: 3844, Пассажирский лифт: 12, От метро: 1460, Восточный, да, Наименьшее кол-во этажей: 11, Наибольшее кол-во этажей: 17, Лухмановская, Кол-во помещений: 662, Кол-во нежилых помещений: 38, Год ввода в эксплуатацию: 2006, 3-комн, Кол-во жилых помещений: 624, E, дом 17, нет, да, да, да, да, нет, Имеется, Грузовых лифтов: 12, Год постройки: 2006, Лухмановская улица, 37.898799, 55.721610
Свяжитесь со мной на счет цены
10 дн.
T55S721610L37S898799T

На карте


Условия сделки

Источник


Старт продаж

Возможно заинтересует