Top.Mail.Ru

улица Кутузова, д. 8

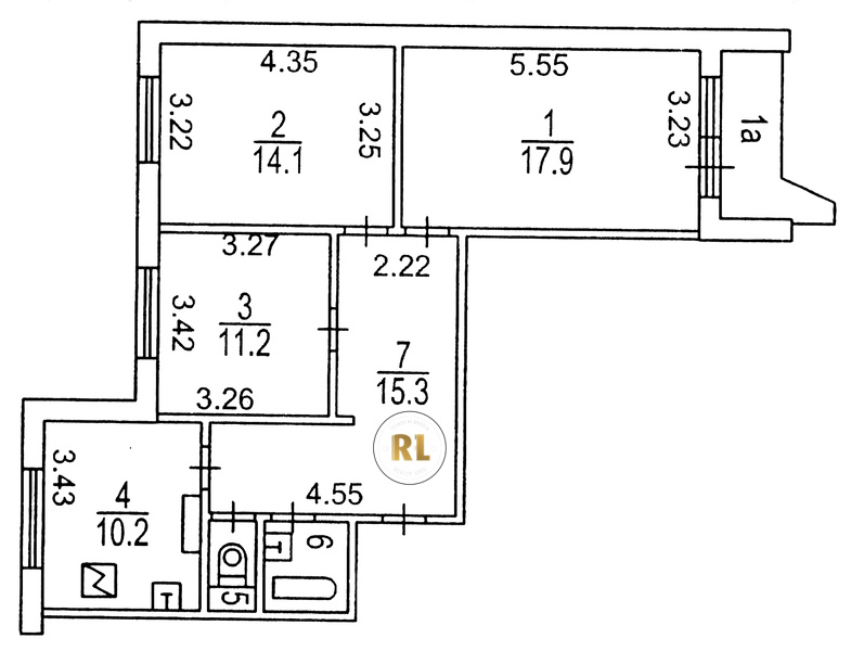
База каталог, Кол-во подъездов: 2, П-44, Москва, Можайский, Пассажирский лифт: 2, От метро: 2470, Западный, да, Наименьшее кол-во этажей: 0, Наибольшее кол-во этажей: 17, Молодёжная, Кол-во помещений: 129, Кол-во нежилых помещений: 0, Год ввода в эксплуатацию: 2004, 3-комн, Кол-во жилых помещений: 129, дом 8, нет, да, да, нет, нет, нет, Имеется, Грузовых лифтов: 2, Год постройки: 2004, улица Кутузова, 37.415236, 55.722117
Свяжитесь со мной на счет цены
10 дн.
T55S722117L37S415236T

На карте


Условия сделки

Источник


Старт продаж

Возможно заинтересует