Top.Mail.Ru

улица Кубинка, д. 18, к. 3

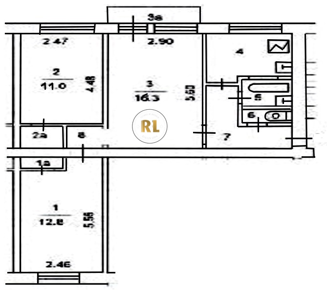
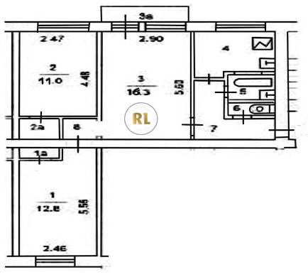
База каталог, Кол-во подъездов: 4, I-511, Москва, Можайский, Пассажирский лифт: 0, От метро: 2740, Западный, да, Наименьшее кол-во этажей: 0, Наибольшее кол-во этажей: 5, Молодёжная, Кол-во помещений: 80, Кол-во нежилых помещений: 0, Год ввода в эксплуатацию: 1968, 3-комн, Кол-во жилых помещений: 80, дом 18, корпус 3, нет, да, нет, нет, нет, нет, Имеется, Грузовых лифтов: 0, Год постройки: 1968, улица Кубинка, 37.409127, 55.722203
Свяжитесь со мной на счет цены
10 дн.
T55S722203L37S409127T

На карте


Условия сделки

Источник


Старт продаж

Возможно заинтересует