Top.Mail.Ru

улица Ватутина, д. 16, к. 2

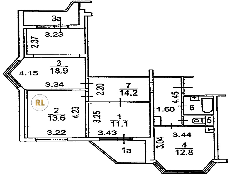
База каталог, Кол-во помещений: 154, Имеется, П-44T, Москва, Фили-Давыдково, Площадь парковки: 0, Пассажирский лифт: 3, От метро: 960, Западный, нет, Наименьшее кол-во этажей: 1, Наибольшее кол-во этажей: 14, Кунцевская, Кол-во подъездов: 3, Год ввода в эксплуатацию: 2000, Кол-во нежилых помещений: 1, 3-комн, Кол-во жилых помещений: 153, дом 16, корпус 2, нет, да, да, да, да, да, Имеется, Грузовых лифтов: 3, Год постройки: 2000, улица Ватутина, 37.453702, 55.722233
Свяжитесь со мной на счет цены
10 дн.
T55S722233L37S453702T

На карте


Условия сделки

Источник


Старт продаж

Возможно заинтересует