Top.Mail.Ru

улица Кубинка, д. 18, к. 5

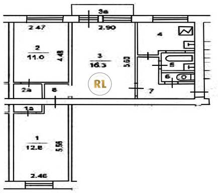
База каталог, Кол-во подъездов: 4, I-511, Москва, Можайский, Пассажирский лифт: 0, От метро: 2680, Западный, да, Наименьшее кол-во этажей: 0, Наибольшее кол-во этажей: 5, Молодёжная, Кол-во помещений: 80, Кол-во нежилых помещений: 0, Год ввода в эксплуатацию: 1969, 3-комн, Кол-во жилых помещений: 80, дом 18, корпус 5, нет, да, нет, нет, нет, нет, Грузовых лифтов: 0, Год постройки: 1969, улица Кубинка, 37.410780, 55.722274
Свяжитесь со мной на счет цены
10 дн.
T55S722274L37S410780T

На карте


Условия сделки

Источник


Старт продаж

Возможно заинтересует