Top.Mail.Ru

3-я Институтская ул., д. 14А

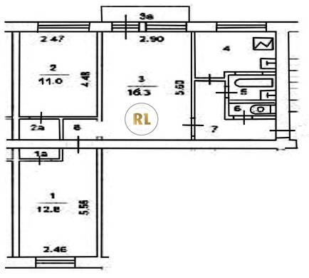
База каталог, Кол-во подъездов: 3, Отсутствует, I-511, Москва, Рязанский, Площадь парковки: 0, Пассажирский лифт: 0, От метро: 560, Юго-Восточный, нет, Наименьшее кол-во этажей: 5, Наибольшее кол-во этажей: 5, Окская, Кол-во помещений: 62, Кол-во нежилых помещений: 2, Год ввода в эксплуатацию: 1964, 3-комн, Кол-во жилых помещений: 60, Не присвоен, дом 14А, да, да, да, да, да, да, Имеется, Грузовых лифтов: 0, Год постройки: 1964, 3-я Институтская улица, 37.785791, 55.722649
Свяжитесь со мной на счет цены
10 дн.
T55S722649L37S785791T

На карте


Условия сделки

Источник


Старт продаж

Возможно заинтересует