Top.Mail.Ru

Яснополянская ул., д. 5

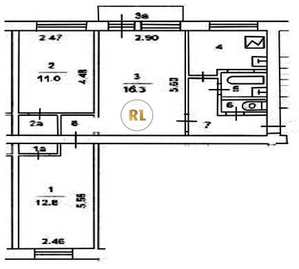
База каталог, Кол-во подъездов: 3, Отсутствует, I-511, Москва, Рязанский, Площадь парковки: 0, Пассажирский лифт: 0, От метро: 740, Юго-Восточный, нет, Наименьшее кол-во этажей: 5, Наибольшее кол-во этажей: 5, Окская, Кол-во помещений: 60, Кол-во нежилых помещений: 0, Год ввода в эксплуатацию: 1962, 3-комн, Кол-во жилых помещений: 60, Не присвоен, дом 5, нет, да, да, да, да, да, Имеется, Грузовых лифтов: 0, Год постройки: 1962, Яснополянская улица, 37.788225, 55.722725
Свяжитесь со мной на счет цены
10 дн.
T55S722725L37S788225T

На карте


Условия сделки

Источник


Старт продаж

Возможно заинтересует