Top.Mail.Ru

Запорожская ул., д. 6

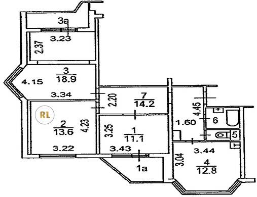
База каталог, Кол-во подъездов: 1, П-44T, Москва, Можайский, Площадь парковки: 0, Пассажирский лифт: 1, От метро: 3000, Западный, нет, Наименьшее кол-во этажей: 1, Наибольшее кол-во этажей: 16, Молодёжная, Кол-во помещений: 0, Кол-во нежилых помещений: 0, Год ввода в эксплуатацию: 2003, 3-комн, Кол-во жилых помещений: 0, дом 6, нет, да, нет, нет, нет, нет, Имеется, Грузовых лифтов: 0, Год постройки: 2003, Запорожская улица, 37.403782, 55.723237
Свяжитесь со мной на счет цены
10 дн.
T55S723237L37S403782T

На карте


Условия сделки

Источник


Старт продаж

Возможно заинтересует