Top.Mail.Ru

Лухмановская ул., д. 33

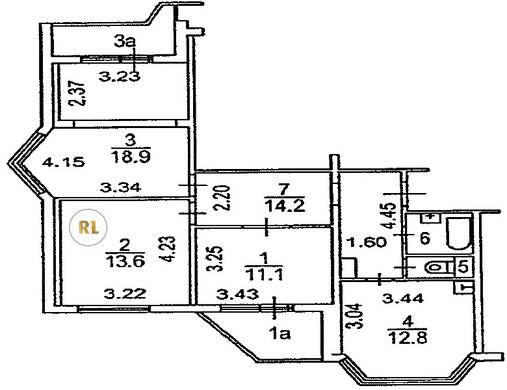
База каталог, Кол-во подъездов: 7, Имеется, П-44T, Москва, Косино-Ухтомский, Площадь парковки: 6346, Пассажирский лифт: 7, От метро: 1760, Восточный, да, Наименьшее кол-во этажей: 11, Наибольшее кол-во этажей: 17, Лухмановская, Кол-во помещений: 372, Кол-во нежилых помещений: 20, Год ввода в эксплуатацию: 2006, 3-комн, Кол-во жилых помещений: 352, E, дом 33, нет, да, да, да, нет, нет, Имеется, Грузовых лифтов: 7, Год постройки: 2006, Лухмановская улица, 37.905177, 55.723582
Свяжитесь со мной на счет цены
10 дн.
T55S723582L37S905177T

На карте


Условия сделки

Источник


Старт продаж

Возможно заинтересует