Top.Mail.Ru

2-й Грайвороновский проезд, д.38, к.1

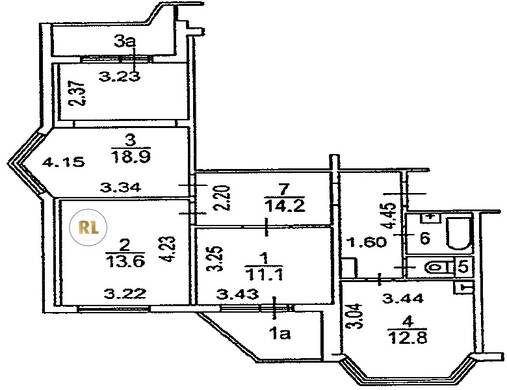
База каталог, Кол-во нежилых помещений: 5, П-44T, Москва, Рязанский, Пассажирский лифт: 3, От метро: 840, Юго-Восточный, да, Наименьшее кол-во этажей: 24, Наибольшее кол-во этажей: 24, Стахановская, Кол-во помещений: 281, Кол-во подъездов: 3, 3-комн, Год ввода в эксплуатацию: 2017, Кол-во жилых помещений: 276, А, дом 38, к.1, нет, да, да, да, да, да, Имеется, Грузовых лифтов: 6, Год постройки: 2017, 2-й Грайвороновский проезд, 37.741010, 55.724353
Свяжитесь со мной на счет цены
10 дн.
T55S724353L37S741010T

На карте


Условия сделки

Источник


Старт продаж

Возможно заинтересует