Top.Mail.Ru

улица Кубинка, д. 22, к. 2

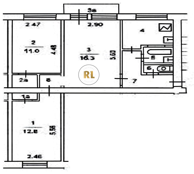
База каталог, Кол-во подъездов: 3, I-511, Москва, Можайский, Пассажирский лифт: 0, От метро: 2640, Западный, да, Наименьшее кол-во этажей: 0, Наибольшее кол-во этажей: 5, Молодёжная, Кол-во помещений: 60, Кол-во нежилых помещений: 0, Год ввода в эксплуатацию: 1966, 3-комн, Кол-во жилых помещений: 60, дом 22, корпус 2, нет, да, нет, нет, нет, нет, Имеется, Грузовых лифтов: 0, Год постройки: 1966, улица Кубинка, 37.407942, 55.724363
Свяжитесь со мной на счет цены
10 дн.
T55S724363L37S407942T

На карте


Условия сделки

Источник


Старт продаж

Возможно заинтересует