Top.Mail.Ru

Люсиновская ул., д. 26-28, к. 6

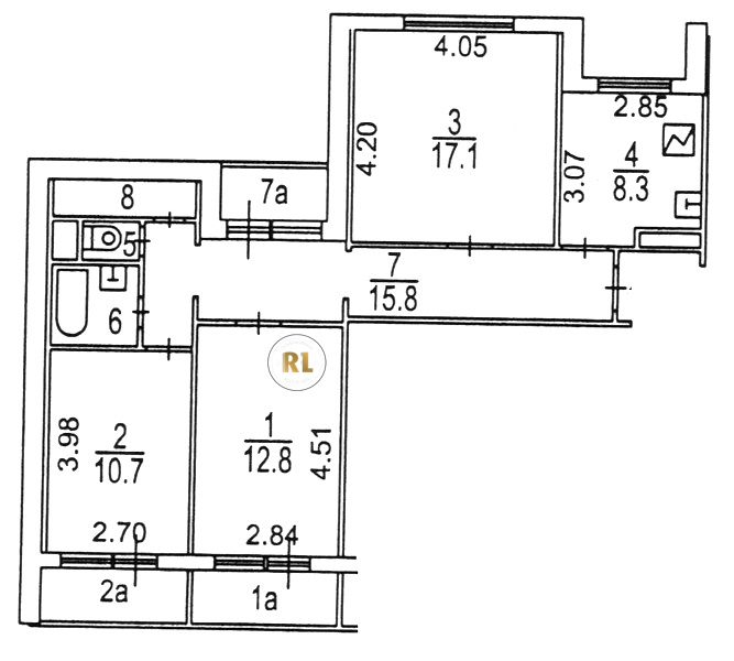
База каталог, Кол-во подъездов: 3, П-55, Москва, Замоскворечье, Площадь парковки: 0, Пассажирский лифт: 6, От метро: 360, Центральный, нет, Наименьшее кол-во этажей: 14, Наибольшее кол-во этажей: 14, Серпуховская, Кол-во помещений: 339, Кол-во нежилых помещений: 1, Год ввода в эксплуатацию: 1995, 3-комн, Кол-во жилых помещений: 338, Не присвоен, дом 26-28, корпус 6, да, да, да, да, да, да, Грузовых лифтов: 0, Год постройки: 1995, Люсиновская улица, 37.621750, 55.725143
Свяжитесь со мной на счет цены
10 дн.
T55S725143L37S621750T

На карте


Условия сделки

Источник


Старт продаж

Возможно заинтересует