Top.Mail.Ru

Снайперская ул., д. 2, к. 1

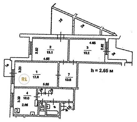
База каталог, Кол-во подъездов: 2, Имеется, П-3/17, Москва, Вешняки, Площадь парковки: 0, Пассажирский лифт: 2, От метро: 1270, Восточный, нет, Наименьшее кол-во этажей: 17, Наибольшее кол-во этажей: 17, Выхино, Кол-во помещений: 151, Кол-во нежилых помещений: 18, Год ввода в эксплуатацию: 1999, 3-комн, Кол-во жилых помещений: 133, D, дом 2, корпус 1, нет, да, да, да, да, нет, Имеется, Грузовых лифтов: 2, Год постройки: 1999, Снайперская улица, 37.815938, 55.725194
Свяжитесь со мной на счет цены
10 дн.
T55S725194L37S815938T

На карте


Условия сделки

Источник


Старт продаж

Возможно заинтересует