Top.Mail.Ru

Косинская ул., д. 10

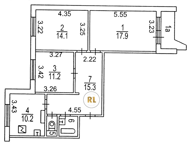
База каталог, Кол-во подъездов: 2, П-44, Москва, Вешняки, Площадь парковки: 577, Пассажирский лифт: 2, От метро: 2160, Восточный, да, Наименьшее кол-во этажей: 17, Наибольшее кол-во этажей: 17, Выхино, Кол-во помещений: 135, Кол-во нежилых помещений: 0, Год ввода в эксплуатацию: 1997, 3-комн, Кол-во жилых помещений: 135, E, дом 10, нет, да, да, нет, нет, нет, Имеется, Грузовых лифтов: 2, Год постройки: 1997, Косинская улица, 37.836303, 55.725493
Свяжитесь со мной на счет цены
10 дн.
T55S725493L37S836303T

На карте


Условия сделки

Источник


Старт продаж

Возможно заинтересует