Top.Mail.Ru

улица Михайлова, д. 22, к. 3

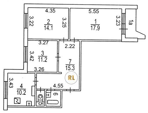
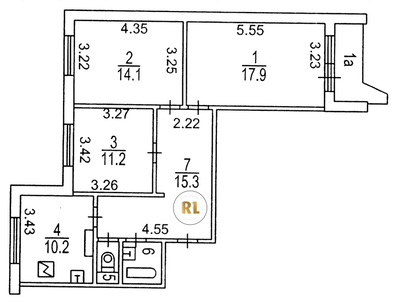
База каталог, Кол-во помещений: 136, П-44, Москва, Рязанский, Площадь парковки: 0, Пассажирский лифт: 2, От метро: 1200, Юго-Восточный, нет, Наименьшее кол-во этажей: 1, Наибольшее кол-во этажей: 17, Окская, Кол-во подъездов: 2, Год ввода в эксплуатацию: 2000, Кол-во нежилых помещений: 1, 3-комн, Кол-во жилых помещений: 135, дом 22, корпус 3, нет, да, да, да, да, нет, Грузовых лифтов: 2, Год постройки: 1999, улица Михайлова, 37.769379, 55.725701
Свяжитесь со мной на счет цены
10 дн.
T55S725701L37S769379T

На карте


Условия сделки

Источник


Старт продаж

Возможно заинтересует