Top.Mail.Ru

Рязанский проспект, д. 49, к. 3

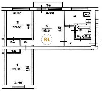
База каталог, Кол-во подъездов: 4, Отсутствует, I-511, Москва, Рязанский, Площадь парковки: 0, Пассажирский лифт: 0, От метро: 900, Юго-Восточный, нет, Наименьшее кол-во этажей: 5, Наибольшее кол-во этажей: 5, Стахановская, Кол-во помещений: 82, Кол-во нежилых помещений: 2, Год ввода в эксплуатацию: 1963, 3-комн, Кол-во жилых помещений: 80, Не присвоен, дом 49, корпус 3, нет, да, да, да, да, да, Имеется, Грузовых лифтов: 0, Год постройки: 1963, Рязанский проспект, 37.765094, 55.725965
Свяжитесь со мной на счет цены
10 дн.
T55S725965L37S765094T

На карте


Условия сделки

Источник


Старт продаж

Возможно заинтересует