Top.Mail.Ru

Зарайская ул., д. 64

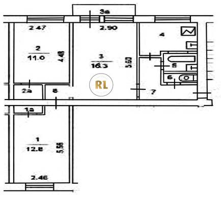
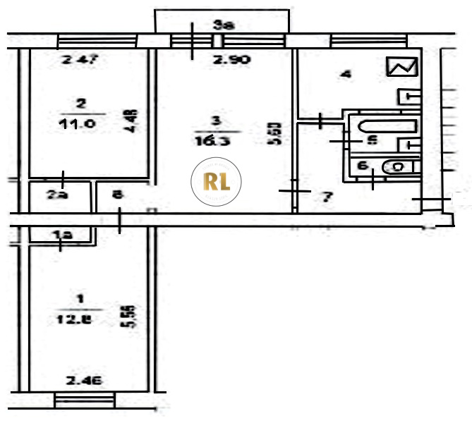
База каталог, Кол-во подъездов: 4, Отсутствует, I-511, Москва, Рязанский, Площадь парковки: 0, Пассажирский лифт: 0, От метро: 1220, Юго-Восточный, нет, Наименьшее кол-во этажей: 5, Наибольшее кол-во этажей: 5, Окская, Кол-во помещений: 82, Кол-во нежилых помещений: 2, Год ввода в эксплуатацию: 1963, 3-комн, Кол-во жилых помещений: 80, Не присвоен, дом 64, нет, да, да, да, да, нет, Отсутствует, Грузовых лифтов: 0, Год постройки: 1963, Зарайская улица, 37.776323, 55.726725
Свяжитесь со мной на счет цены
10 дн.
T55S726725L37S776323T

На карте


Условия сделки

Источник


Старт продаж

Возможно заинтересует