Top.Mail.Ru

Люсиновская ул., д. 4

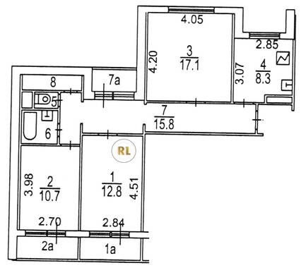
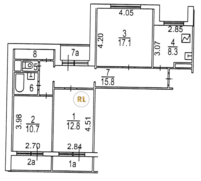
База каталог, Кол-во подъездов: 3, П-55, Москва, Замоскворечье, Площадь парковки: 0, Пассажирский лифт: 6, От метро: 227, Центральный, нет, Наименьшее кол-во этажей: 14, Наибольшее кол-во этажей: 14, Добрынинская, Кол-во помещений: 136, Кол-во нежилых помещений: 6, Год ввода в эксплуатацию: 1985, 3-комн, Кол-во жилых помещений: 130, Не присвоен, дом 4, да, да, да, да, да, да, Грузовых лифтов: 0, Год постройки: 1985, Люсиновская улица, 37.622333, 55.727136
Свяжитесь со мной на счет цены
10 дн.
T55S727136L37S622333T

На карте


Условия сделки

Источник


Старт продаж

Возможно заинтересует