Top.Mail.Ru

улица Михайлова, д. 12, к. 1

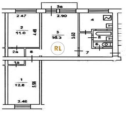
База каталог, Кол-во подъездов: 4, Отсутствует, I-511, Москва, Рязанский, Площадь парковки: 0, Пассажирский лифт: 0, От метро: 1040, Юго-Восточный, нет, Наименьшее кол-во этажей: 5, Наибольшее кол-во этажей: 5, Стахановская, Кол-во помещений: 79, Кол-во нежилых помещений: 2, Год ввода в эксплуатацию: 1962, 3-комн, Кол-во жилых помещений: 77, Не присвоен, дом 12, корпус 1, нет, да, да, да, да, да, Имеется, Грузовых лифтов: 0, Год постройки: 1962, улица Михайлова, 37.765767, 55.727749
Свяжитесь со мной на счет цены
10 дн.
T55S727749L37S765767T

На карте


Условия сделки

Источник


Старт продаж

Возможно заинтересует