Top.Mail.Ru

улица Михайлова, д. 21

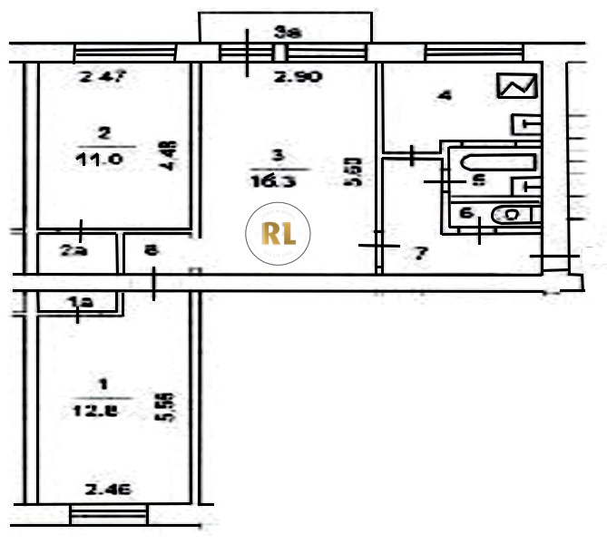
База каталог, Кол-во подъездов: 4, Отсутствует, I-511, Москва, Рязанский, Площадь парковки: 0, Пассажирский лифт: 0, От метро: 1220, Юго-Восточный, нет, Наименьшее кол-во этажей: 5, Наибольшее кол-во этажей: 5, Стахановская, Кол-во помещений: 82, Кол-во нежилых помещений: 2, Год ввода в эксплуатацию: 1961, 3-комн, Кол-во жилых помещений: 80, Не присвоен, дом 21, нет, да, да, да, да, нет, Имеется, Грузовых лифтов: 0, Год постройки: 1961, улица Михайлова, 37.768166, 55.727820
Свяжитесь со мной на счет цены
10 дн.
T55S727820L37S768166T

На карте


Условия сделки

Источник


Старт продаж

Возможно заинтересует