Top.Mail.Ru

Нижегородская ул., д. 106, к. 2

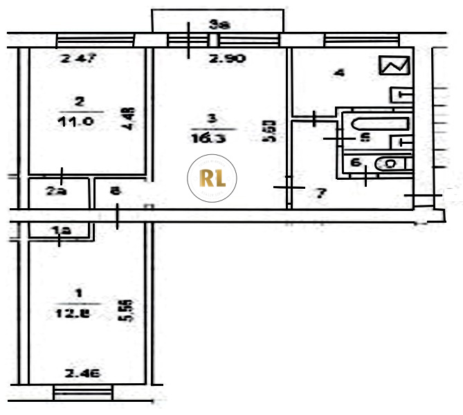
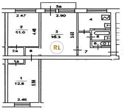
База каталог, Кол-во подъездов: 3, Отсутствует, I-511, Москва, Нижегородский, Площадь парковки: 0, Пассажирский лифт: 0, От метро: 870, Юго-Восточный, нет, Наименьшее кол-во этажей: 0, Наибольшее кол-во этажей: 5, Нижегородская, Кол-во помещений: 65, Кол-во нежилых помещений: 5, Год ввода в эксплуатацию: 1963, 3-комн, Кол-во жилых помещений: 60, Не присвоен, дом 106, корпус 2, нет, да, да, да, да, да, Имеется, Грузовых лифтов: 0, Год постройки: 1963, Нижегородская улица, 37.721894, 55.727952
Свяжитесь со мной на счет цены
10 дн.
T55S727952L37S721894T

На карте


Условия сделки

Источник


Старт продаж

Возможно заинтересует