Top.Mail.Ru

улица Ивана Франко, д. 32, к. 1

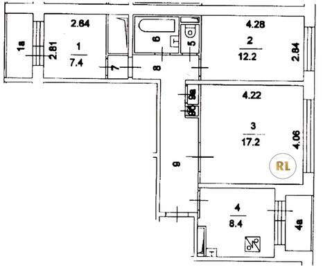
База каталог, Кол-во подъездов: 10, П-30, Москва, Кунцево, Площадь парковки: 1170, Пассажирский лифт: 0, От метро: 1600, Западный, да, Наименьшее кол-во этажей: 0, Наибольшее кол-во этажей: 12, Кунцевская, Кол-во помещений: 0, Кол-во нежилых помещений: 0, Год ввода в эксплуатацию: 1983, 3-комн, Кол-во жилых помещений: 0, Не присвоен, дом 32, корпус 1, нет, да, да, да, нет, нет, Имеется, Грузовых лифтов: 0, Год постройки: 1983, улица Ивана Франко, 37.421488, 55.728089
Свяжитесь со мной на счет цены
10 дн.
T55S728089L37S421488T

На карте


Условия сделки

Источник


Старт продаж

Возможно заинтересует