Top.Mail.Ru

улица Ивана Франко, д. 40, к. 1

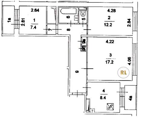
База каталог, Кол-во подъездов: 10, П-30, Москва, Кунцево, Площадь парковки: 917, Пассажирский лифт: 20, От метро: 1680, Западный, да, Наименьшее кол-во этажей: 1, Наибольшее кол-во этажей: 12, Молодёжная, Кол-во помещений: 424, Кол-во нежилых помещений: 3, Год ввода в эксплуатацию: 1983, 3-комн, Кол-во жилых помещений: 421, Не присвоен, дом 40, корпус 1, нет, да, да, да, нет, нет, Имеется, Грузовых лифтов: 0, Год постройки: 1983, улица Ивана Франко, 37.409451, 55.728819
Свяжитесь со мной на счет цены
10 дн.
T55S728819L37S409451T

На карте


Условия сделки

Источник


Старт продаж

Возможно заинтересует