Top.Mail.Ru

улица Михайлова, д. 2/6

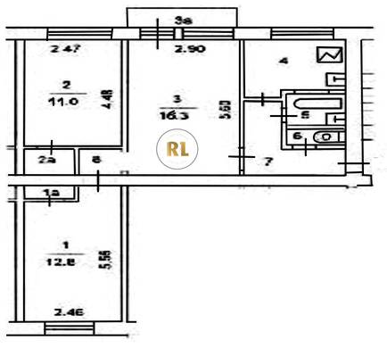
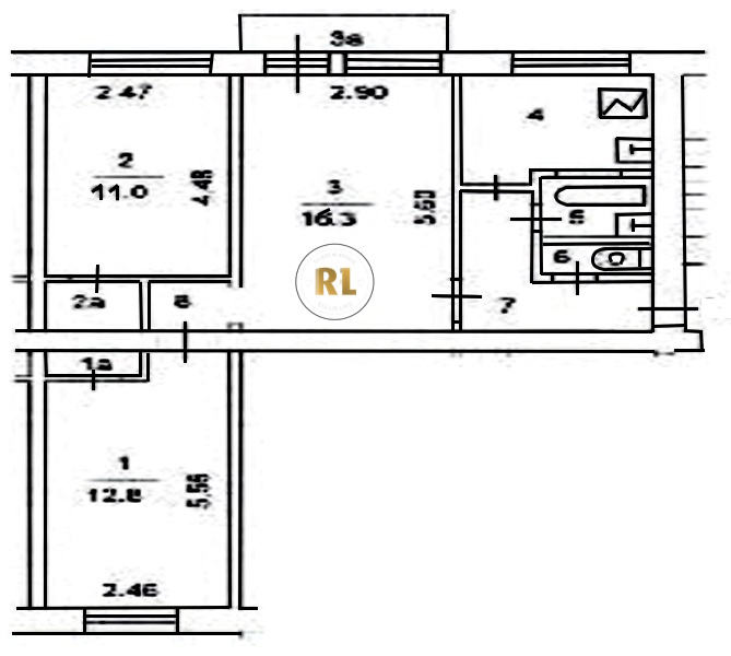
База каталог, Кол-во подъездов: 4, Отсутствует, I-511, Москва, Рязанский, Площадь парковки: 0, Пассажирский лифт: 0, От метро: 710, Юго-Восточный, нет, Наименьшее кол-во этажей: 5, Наибольшее кол-во этажей: 5, Стахановская, Кол-во помещений: 82, Кол-во нежилых помещений: 2, Год ввода в эксплуатацию: 1961, 3-комн, Кол-во жилых помещений: 80, Не присвоен, дом 2/6, нет, да, да, да, да, да, Имеется, Грузовых лифтов: 0, Год постройки: 1961, улица Михайлова, 37.760890, 55.728941
Свяжитесь со мной на счет цены
10 дн.
T55S728941L37S760890T

На карте


Условия сделки

Источник


Старт продаж

Возможно заинтересует