Top.Mail.Ru

улица Ивана Франко, д. 42/2

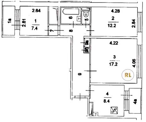
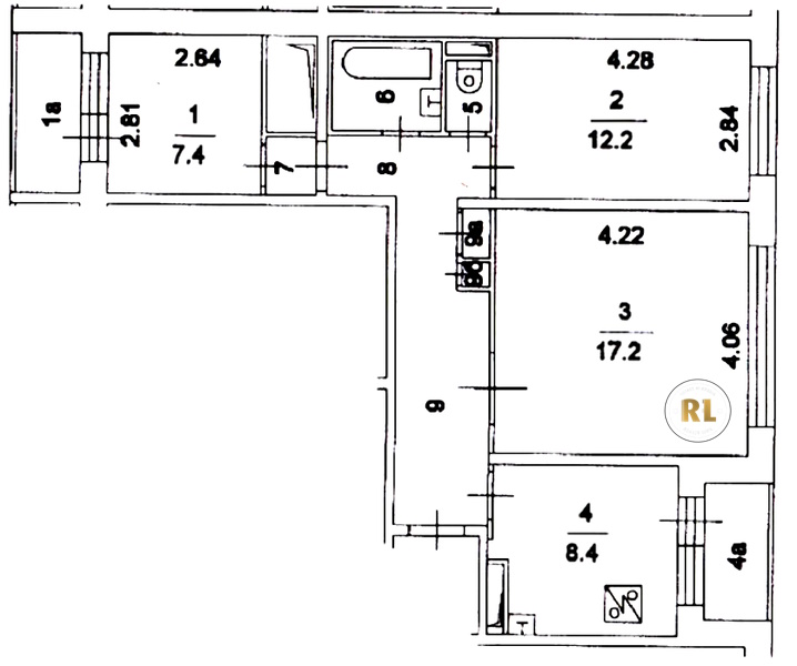
База каталог, Кол-во подъездов: 4, П-30, Москва, Кунцево, Пассажирский лифт: 8, От метро: 1720, Западный, да, Наименьшее кол-во этажей: 12, Наибольшее кол-во этажей: 12, Молодёжная, Кол-во помещений: 183, Кол-во нежилых помещений: 20, Год ввода в эксплуатацию: 1984, 3-комн, Кол-во жилых помещений: 163, Не присвоен, дом 42/2, нет, да, да, да, нет, нет, Грузовых лифтов: 0, Год постройки: 1984, улица Ивана Франко, 37.407133, 55.729199
Свяжитесь со мной на счет цены
10 дн.
T55S729199L37S407133T

На карте


Условия сделки

Источник


Старт продаж

Возможно заинтересует