Top.Mail.Ru

улица Михайлова, д. 7

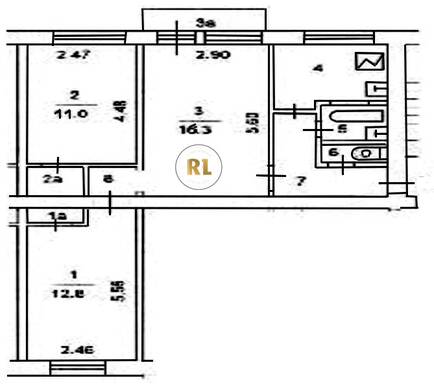
База каталог, Кол-во подъездов: 4, Имеется, I-511, Москва, Рязанский, Площадь парковки: 0, Пассажирский лифт: 0, От метро: 850, Юго-Восточный, нет, Наименьшее кол-во этажей: 5, Наибольшее кол-во этажей: 5, Стахановская, Кол-во помещений: 82, Кол-во нежилых помещений: 2, Год ввода в эксплуатацию: 1960, 3-комн, Кол-во жилых помещений: 80, Не присвоен, дом 7, нет, да, да, да, да, да, Имеется, Грузовых лифтов: 0, Год постройки: 1960, улица Михайлова, 37.762695, 55.729219
Свяжитесь со мной на счет цены
10 дн.
T55S729219L37S762695T

На карте


Условия сделки

Источник


Старт продаж

Возможно заинтересует