Top.Mail.Ru

улица Герасима Курина, д. 44, к. 1

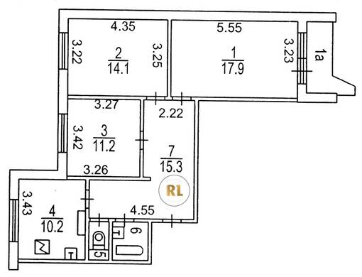
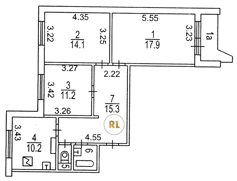
База каталог, Кол-во помещений: 322, П-44-1/17, Москва, Фили-Давыдково, Площадь парковки: 0, Пассажирский лифт: 5, От метро: 590, Западный, нет, Наименьшее кол-во этажей: 17, Наибольшее кол-во этажей: 17, Славянский бульвар, Кол-во подъездов: 5, Год ввода в эксплуатацию: 1998, Кол-во нежилых помещений: 2, 3-комн, Кол-во жилых помещений: 320, дом 44, корпус 1, да, да, да, да, да, да, Грузовых лифтов: 5, Год постройки: 1998, улица Герасима Курина, 37.461481, 55.730527
Свяжитесь со мной на счет цены
10 дн.
T55S730527L37S461481T

На карте


Условия сделки

Источник


Старт продаж

Возможно заинтересует