Top.Mail.Ru

Рязанский проспект, д. 21

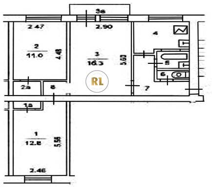
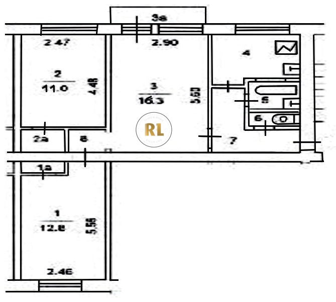
База каталог, Кол-во подъездов: 3, I-511, Москва, Нижегородский, Площадь парковки: 381, Пассажирский лифт: 0, От метро: 890, Юго-Восточный, да, Наименьшее кол-во этажей: 0, Наибольшее кол-во этажей: 5, Стахановская, Кол-во помещений: 60, Кол-во нежилых помещений: 0, Год ввода в эксплуатацию: 1967, 3-комн, Кол-во жилых помещений: 60, дом 21, нет, да, да, да, да, да, Имеется, Грузовых лифтов: 0, Год постройки: 1967, Рязанский проспект, 37.744585, 55.730573
Свяжитесь со мной на счет цены
10 дн.
T55S730573L37S744585T

На карте


Условия сделки

Источник


Старт продаж

Возможно заинтересует