Top.Mail.Ru

Рязанский проспект, д. 17

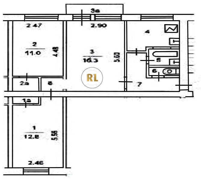
База каталог, Кол-во подъездов: 3, Отсутствует, I-511, Москва, Нижегородский, Площадь парковки: 0, Пассажирский лифт: 0, От метро: 900, Юго-Восточный, нет, Наименьшее кол-во этажей: 0, Наибольшее кол-во этажей: 5, Нижегородская, Кол-во помещений: 60, Кол-во нежилых помещений: 0, Год ввода в эксплуатацию: 1965, 3-комн, Кол-во жилых помещений: 60, Не присвоен, дом 17, нет, да, да, да, да, да, Отсутствует, Грузовых лифтов: 0, Год постройки: 1965, Рязанский проспект, 37.743247, 55.730821
Свяжитесь со мной на счет цены
10 дн.
T55S730821L37S743247T

На карте


Условия сделки

Источник


Старт продаж

Возможно заинтересует