Top.Mail.Ru

Чистопольская ул., д. 2, к. 3

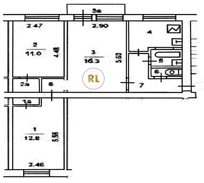
База каталог, Кол-во подъездов: 3, Отсутствует, I-511, Москва, Нижегородский, Площадь парковки: 0, Пассажирский лифт: 0, От метро: 730, Юго-Восточный, нет, Наименьшее кол-во этажей: 0, Наибольшее кол-во этажей: 5, Стахановская, Кол-во помещений: 60, Кол-во нежилых помещений: 0, Год ввода в эксплуатацию: 1966, 3-комн, Кол-во жилых помещений: 60, Не присвоен, дом 2, корпус 3, нет, да, да, да, да, да, Имеется, Грузовых лифтов: 0, Год постройки: 1966, Чистопольская улица, 37.758913, 55.730902
Свяжитесь со мной на счет цены
10 дн.
T55S730902L37S758913T

На карте


Условия сделки

Источник


Старт продаж

Возможно заинтересует